Chauffage via webasto et circuit origine

play3000
Messages : 227
Enregistré le : 06 déc. 2021, 10:06
Localisation : Bretagne

Re: Chauffage via webasto et circuit origine

Message par play3000 »

lambish a écrit : 03 mars 2024, 23:09 Hello, en effet les 3 voix réduisent le diamètre de passage, j'ai les même diamètre et forcément ça réduit... Après je te rassure, ca tourne très bien comme ca t'inquiète pas ;)

Pour le circulateur effectivement, il tourne à 5200l/h ^^ donc oui surement très bruyant comme le miens. J'ai mis un variateur PWM de puissance fait maison pour le réguler, à 75% de sa vitesse d'origine, c'est vraiment mieux !!! j'ai trouvé ca sur amazon, ca correspond a mon machin https://www.amazon.fr/gp/product/B08761 ... UTF8&psc=1
C'est à brancher sur la ligne d'alimentation du circulateur ;)
Bonjour,
Bon, j'ai visiblement raté ce message. Mais, retrouvé à temps !
Du coup, tu fais varier quoi ? La tension ou l'intensité pour gérer cette vitesse ?
Et comment tu sais que c'est 75% ?
Dommage, le boitier sur Amazon n'est pas étanche.
Je pense qu'il faudra aussi que je puisse ouvrir une vanne sur le circuit en fonction de la température intérieure. En effet, j'ai l'impression qu'elle est pilotée selon celle-ci, mais sur le 24V du car. Comme je veux basculer le Webasto sur le 24V stationnaire, il faut que je puisse aussi gérer cette vanne.
Mais je dois regarder de plus près le fonctionnement, car j'ai l'impression que l'électrovanne est sur un circuit d'air, qui pilote une vanne sur le circuit d'eau (donc sans pression d'air, ça ne marche pas...)
A+
lambish
Administrateur du site
Messages : 751
Enregistré le : 13 nov. 2021, 12:33

Re: Chauffage via webasto et circuit origine

Message par lambish »

Hello, pas de soucis ;)
Ça fait varier la tension, sur un moteur DC c'est le mieux :)
Comment je sais ? et bien c'est simple, j'ai regardé ma tension à 100% et ensuite j'ai réglé via un potar' sur la tension qui correspond à 75%. C'est pas une science exacte, mais 75% est aussi arbitraire :D
Effectivement ^^ le mien non plus, mais ce n'est pas un soucis perso, il est juste à coté du webasto, pas de soucis d’oxydation, et en cas de fuite de liquide, ben je l'ai placé en hauteur :D

Ah en effet c'est des vanne à air des fois, j'en avait une aussi ^^ mais comme j'ai tout vir j'ai plus ce soucis... Tu peux mettre une électrovanne en 24V. Par contre pour le pilotage de tout ça sur le stationnaire plutôt que le car, va falloir faire une truc maison surement 🤔
Hey ! Viendez voir: http://www.4rouesmaurice.com/ c'est mon bus !
play3000
Messages : 227
Enregistré le : 06 déc. 2021, 10:06
Localisation : Bretagne

Re: Chauffage via webasto et circuit origine

Message par play3000 »

Oui, pour le pilotage de la vanne, il faudra un bricolage maison.
Soit du très basique : un interrupteur qui permet d'activer ou non l'ouverture de la vanne. Soit du plus évolué, avec un réglage de température de déclenchement pour l'ouverture de la vanne.
En fait, j'ai fait une petite boulette dans l'aménagement : j'ai laissé 2 morceaux de radiateurs d'origine. Donc, la solution interrupteur seul serait très bien (les radiateurs ont un robinet thermostatique), sauf que j'ai ces 2 morceaux de radiateurs qui sont sur le circuit quoiqu'il arrive... Ils vont donc chauffer sans arrêt.
lambish
Administrateur du site
Messages : 751
Enregistré le : 13 nov. 2021, 12:33

Re: Chauffage via webasto et circuit origine

Message par lambish »

Et les bouchonner ne serait pas jouable ?
Hey ! Viendez voir: http://www.4rouesmaurice.com/ c'est mon bus !
play3000
Messages : 227
Enregistré le : 06 déc. 2021, 10:06
Localisation : Bretagne

Re: Chauffage via webasto et circuit origine

Message par play3000 »

Bonjour,

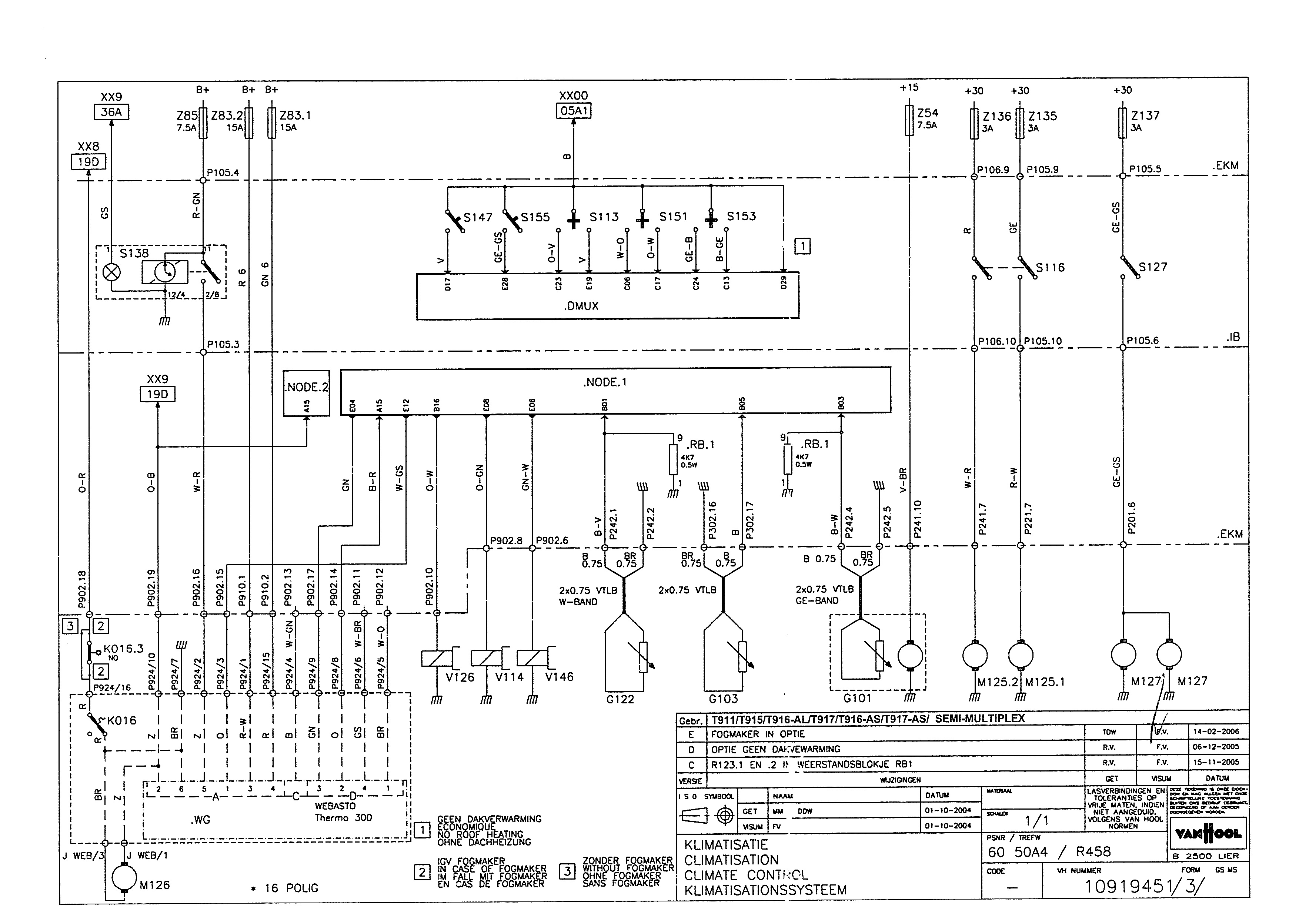
Bonne nouvelle, j'ai trouvé le schéma électrique du branchement du Webasto (bon, en fait, je l'ai depuis le début, mais le nom de la planche est "Climatisation") !
Climatisation_Schema.jpg
Climatisation_Legende.jpg
La vanne en question est la V114

A ce stade, j'imagine 2 options :
- remplacer les 3 arrivées B+ (positif avec branchement batteries) par une arrivée sur mes batteries lithium. Inconvénient, il ne faut pas que j'oublie de brancher mes batteries quand je roule ! et il faut que je prévoie une alimentation et un relais pour la vanne V114 (le relais permettant de basculer soit sur le calculo du car lorsque B+ est branché, soit sur mes batteries cellules)
- soit je mets des relais sur tous les connexions nécessaires pour avoir une bascule automatique entre l'alimentation par les batteries de traction quand elles sont connectés, ou bascule automatique sur les batteries de la cellule lorsque je n'ai pas les batteries de tractions.
Je compte également mettre une connexion sur la borne D3 du webasto pour le mettre en mode ECO sur les batteries lithium (il ne chauffera l'eau qu'à 55°C) et il faut que je ramène un positif sur la borne 11 du boitier de commande pour couper la temporisation de 2H max (je mettrai un bouton pour pouvoir revenir à la situation avec cette temporisation).
Je pourrai même envisager brancher le ventilateur conducteur de la même manière pour pouvoir me servir aussi du désembuage/chauffage tout à l'avant du car (mais bon, ce sera dans un second temps) !

Note : la borne D2 du webasto sert à piloter la pompe de circulation (forcer son fonctionnement même si le webasto ne tourne pas)

Votre avis ?

A+
lambish
Administrateur du site
Messages : 751
Enregistré le : 13 nov. 2021, 12:33

Re: Chauffage via webasto et circuit origine

Message par lambish »

Hello, j'ai lu ton message mais pas encore eu le temps de me pencher sur tes questions. Je ne sais pas si tu as trouvé une solution déjà. J'essaie de regarder prochainement ;)
Hey ! Viendez voir: http://www.4rouesmaurice.com/ c'est mon bus !
play3000
Messages : 227
Enregistré le : 06 déc. 2021, 10:06
Localisation : Bretagne

Re: Chauffage via webasto et circuit origine

Message par play3000 »

Non, j'ai eu quelques urgences... Tiens, faudrait que je les poste dans le le forum !
Allez hop, je le fais.
lambish
Administrateur du site
Messages : 751
Enregistré le : 13 nov. 2021, 12:33

Re: Chauffage via webasto et circuit origine

Message par lambish »

Alors j'ai pris le temps de regarder un peu et c'est vrai que perso, je partirai plutôt sur le deuxième solution. Plus complexe a mettre en place mais mieux en terme de fonctionnement, surtout que tu as pas à t'embéter a chaque fois que tu roules ^^

Concernant le Webasto, attention, le mode éco fait en sorte que l'eau en sortie ne dépasse pas 55 au lieux des 80 de base. problème. Si ta boucle est trop courte ou ton échange trop faible, ton retour au webasto sera très vite chaud et le webasto ce mettra a cycler, c'est à dire tourner puis arrêter sans cesse tant que la température fluctue car les Termo300/DW300 sont extrêmement puissant (300 = 30kW)... Beaucoup plus que ce que le circuit peut dissiper en théorie (car normalement tu chauffe le moteur et sa masse au passage)
Pour ma part je le fais, programmatiquement parlant, chauffer par cycle en surveillant la T° de départ du circuit, si elle passe sous la valeur, je le déclenche. Il tourne X minutes sans atteindre les 80, puis coupe. Mais j'ai un ballon tampon....

Tu as un ballon tampon ? (je crois que non)
Hey ! Viendez voir: http://www.4rouesmaurice.com/ c'est mon bus !
play3000
Messages : 227
Enregistré le : 06 déc. 2021, 10:06
Localisation : Bretagne

Re: Chauffage via webasto et circuit origine

Message par play3000 »

Bonjour,
Non, pas de ballon tampon, ni de vase d'expansion d'ailleurs. Le seul ballon tampon, c'est le ballon d'eau chaude qui est aussi chauffé par le circuit de refroidissement. Il faut que je trouve une solution vase d'expansion (ce sera quand même mieux) à minima... Bon, vu les 40L environ dans la partie chauffage, et un coefficient de 4,34% d'expansion entre 10 et 100°C (ce qui peut faire entre -10° et 80°C pour la température de l'eau), j'ai besoin d'un vase de 1,736L. Il faut que je trouve où le mettre, car il faudrait qu'il soit sur le circuit minimal (ie : celui qui est toujours utilisé par le liquide, même si les températures sont atteintes ailleurs)

Effectivement, le mode eco, c'est 55°C, ce qui est bien pour les radiateurs. D'ailleurs, ce mode est en réalité activé quand je n'ai que la connexion batterie mécanique et pas la connexion électrique (je n'ai pas poussé les tests plus loin récemment, mais il me semble qu'avec la connexion électrique de tous les périphériques, il chauffe bien à 72°C).
Une fois sur le 24V cellule, je pense qu'il est possible de faire à minima un système de mise "off" du webasto quand la température intérieure est atteinte. Pour éviter de trop avoir le phénomène de marche/arrêt trop fréquent.
Je viens de voir également, qu'il faudrait que j'ai une bascule pour le fusible Z137 (tout à droite du schéma) : je pourrai me servir du chauffage avant également (par exemple, pour enlever la condensation sur la pare-brise. Bon, ça reste à tester et pas la priorité.
Lors des (rares) utilisations, je n'ai pas noté une tendance trop forte au démarrage et arrêt quand même du webasto à 55°C ==> d'où l'idée de limiter à un coupure une fois la température consigne atteinte avec fermeture de la vanne V114, car sinon, ça chauffe tout le temps à l'intérieur (vu que j'ai gardé les 2 radiateurs avants qui sont donc branchés en permanence sur le circuit).
Bon, ce sera à voir à l'automne je pense, pour implémentation cet hiver en fonction du retour d'expérience.

Sinon, pour la solution 2, il me faut donc :
- un relais sur les 3 fusibles alimentation pour basculer batterie traction/batterie véhicule (bon, il faudra que je regarde les ponts dans la boite à fusible pour utiliser les mêmes fusibles, mais pour les 2 principaux, c'est pas un soucis).
- si nécessaire, ajouter un relais sur la ligne "éco". A vérifier si le courant arrive lorsque le nœud électronique est off ou lorsqu'il est activé, car si normalement, sans alimentation du noeud, je suis en mode éco donc je ne devrai pas en avoir besoin
- un relais pour V114 et/ou V146 (il faut que je détermine ce qu'est le "chauffage intérieur" et le "chauffage à convecteur")
- un relais pour connecter le + à la PIN 10 du module de commande pour ne pas avoir le timer de 120mn max.
Ça devrait faire entre 7 et 5 relais au final.

A+
lambish
Administrateur du site
Messages : 751
Enregistré le : 13 nov. 2021, 12:33

Re: Chauffage via webasto et circuit origine

Message par lambish »

Je vois que t'as bien étudié le truc :D

Si ton circuit reste toujours relié au vase du car, tu n'en aura peut-etre pas besoin ? Perso, y a un tout petit tuyaux qui va au vase "car".

Je suis curieux de voir le résultat et l'impact sur ta conso (le Thermo 300 c'est 3/4L/h) sans ballon, surtout en hiver avec un grand froid dehors. Pour te donner un ordre d'idée, avec mon ballon, je suis à 8 cycles par nuit de 9h (cycle de 6 minutes) en hiver avec -4 dehors. Je l'ai réduit un peu avec un gicleur plus petit du 60, donc ma conso mesuré est de 2,3L/h

Pour la connexion, ca fait un paquet de relai mais si tu les pilotes tous en même temps, ca fera pas trop de fil :D
Hey ! Viendez voir: http://www.4rouesmaurice.com/ c'est mon bus !
Répondre